Terreno con licencia entre San Lorenzo y Santa Gertrudis

DETALLES
TIPO
Land
LOCALIDAD
Santa Eulalia
HABITACIONES
0
BAÑOS
0
SUPERFICIE
TERRENO
28342 m2
PRECIO
2.840.000 €
OTRAS CARACTERÍSTICAS

SOBRE LA PROPIEDAD

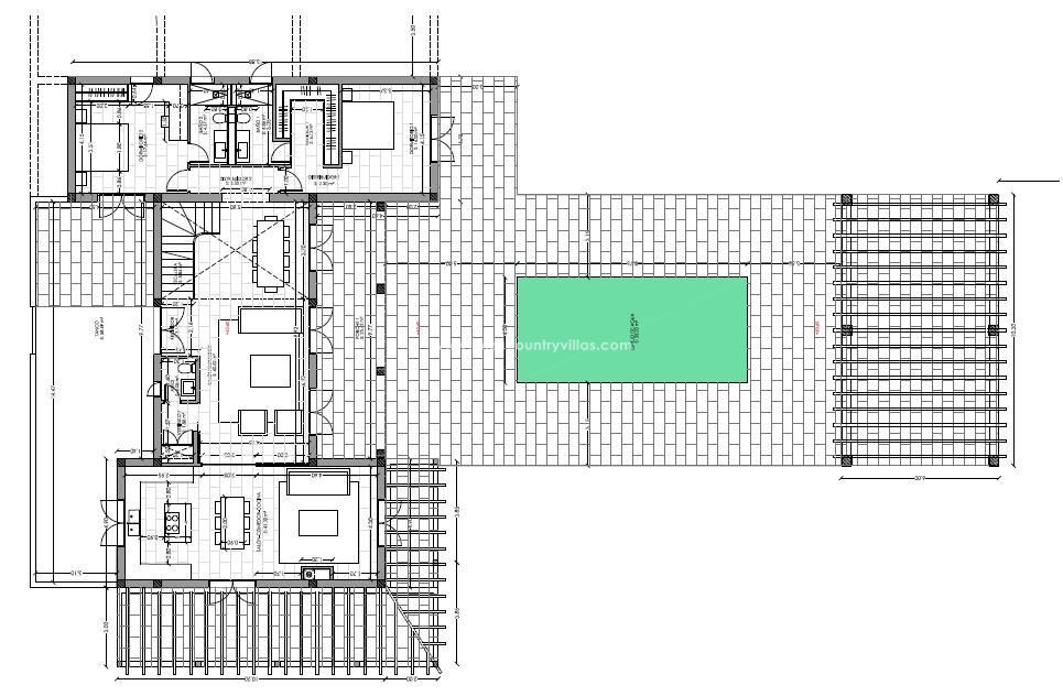
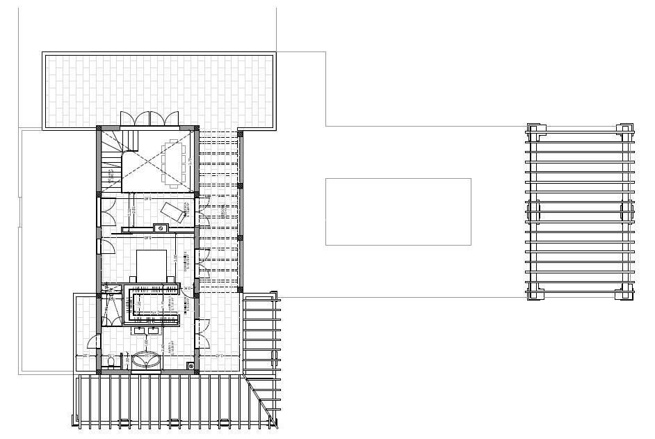
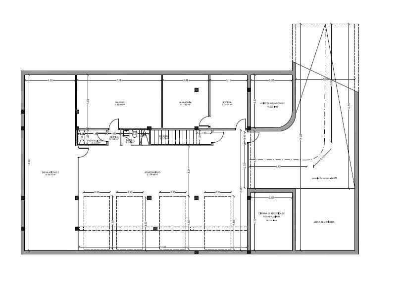
Exclusivo Terreno con Licencia en San Lorenzo – ¡Tu Proyecto de Lujo Te Espera!

Descubre esta oportunidad única de inversión en una de las zonas más prestigiosas de San Lorenzo, donde el lujo y la naturaleza se encuentran para dar vida a tu villa soñada. Este terreno de 28342 m², con licencia lista para construir, es el lienzo perfecto para desarrollar una residencia de alto standing que redefine el concepto de confort y elegancia.

Diseño Moderno y Sofisticado: Imagina una villa de dos plantas, diseñadas para maximizar la luz natural y la amplitud de los espacios. Con tres amplios dormitorios, cada uno con baño en suite, esta propiedad ofrecerá privacidad total y un ambiente de bienestar inigualable. Los acabados de primera calidad y un diseño contemporáneo harán que cada rincón de la vivienda se sienta como un refugio exclusivo.

Ubicación Privilegiada: Situado en un entorno tranquilo, rodeado de naturaleza y con vistas abiertas al campo, este terreno no solo te garantiza la privacidad que buscas, sino también la comodidad de estar a pocos minutos de los principales puntos de interés de Ibiza. Aquí, podrás disfrutar de la serenidad del campo sin renunciar a la cercanía de todos los servicios y atractivos que la zona tiene para ofrecer.

Una Inversión Sin Igual: Este terreno no solo es el lugar ideal para construir una villa , sino que también representa una oportunidad exclusiva para quienes buscan invertir en una propiedad que combine estilo, exclusividad y una ubicación envidiable.

Por favor, ten en cuenta que los renders son únicamente para fines ilustrativos.

Haz Realidad Tu Sueño: No dejes pasar la oportunidad de crear la casa que siempre imaginaste, en uno de los lugares más codiciados de Ibiza. Este es tu momento para diseñar un hogar a la medida de tus sueños, en un enclave de ensueño.

LOCALIZACION
Santa Eulalia
PIDA MÁS INFORMACIÓN

PROPIEDADES SIMILARES

Compartir esta página
Ibiza Country Villas
Resumen de privacidad

Esta web utiliza cookies para que podamos ofrecerte la mejor experiencia de usuario posible. La información de las cookies se almacena en tu navegador y realiza funciones tales como reconocerte cuando vuelves a nuestra web o ayudar a nuestro equipo a comprender qué secciones de la web encuentras más interesantes y útiles.